AIR-SEP® Druckhaltestationen: Generation 5 ist ab sofort verfügbar
Wir haben unseren Druckhaltestationen ein weiteres Upgrade gegönnt. Alle AIR-SEP® Systeme sind jetzt in Generation 5 erhältlich!
Wie bekannt, kommen AIR-SEP® Druckhaltestationen in geschlossenen und zirkulierenden Heiz-, Kühl- und Kältekreisläufen zum Einsatz. Sie übernehmen dabei die Funktion der dynamischen Druckhaltung, der Ausdehnung, Entgasung und der Reinigung sowie die der vollautomatischen Nachspeisung.
Neben weiterem Systemzubehör wie Magnetitfilter, Enthärtungs- und Vollentsalzungsarmaturen bieten wir auch Lösungen für individuelle Anwendungen.
Klassische 4-Leiter-/Change-Over-Systeme können um ein Heating/Cooling-KIT ergänzt werden, wodurch es möglich wird, zwei parallel agierende Kreisläufe zu überwachen, präzise Druck zu halten und zu entgasen. Alles mit nur einer kompakten, aber multifunktionalen AIR-SEP® Druckhaltestation. Da spart es sich gleich mehrfach; bei der Anschaffung, der jährlichen Wartung und am Platzbedarf zur Geräteaufstellung!
Wasser als Energieträger hat aufgrund seiner physikalischen Eigenschaft das Talent unter Druck Gase aufzunehmen. Das wirkt sich nicht nur in Heizsystemen negativ aus. In Anlagen mit Frostschutzmittel kann es sogar zu einem Totalausfall führen. Der Wirkungsgrad eines Kühlsystems, dessen Medium mit Gasen gesättigt ist, sinkt dabei um bis zu 50%! Aber auch hier bietet KOREX die richtige Lösung: optimierte Intervall-Entgasung (um Schaumbildung zu vermeiden), werkseitig angebrachte Isolierungen mit Dampfsperre bis -10°C, eine vollautomatisierte Nachspeisung von Frostschutzmittelgemischen und sogar für Tiefkältekreisläufe mit bis zu -50°C hat KOREX abermals eine passende Lösung im Produktportfolio: unsere patentierte AIR-SEP® Thermische Vorentgasungseinheit. Selbstverständlich „Made in Germany“.
Für Anlagen mit erhöhten Anforderungen oder bei Einsatz von aggressiven Medien liefern wir unsere AIR-SEP® Systeme auch komplett aus Edelstahl. Alle medienführenden Baugruppen wie z.B. Druckhaltepumpe, Überströmventil aber auch Deckel, Böden und Verkleidungen sind dann aus diesem hochwertigen Material gefertigt.
Die AIR-SEP® Druckhaltestation vereint alle notwendigen Funktionen in nur einem Gerät, um zirkulierende Kreisläufe sicher und störungsfrei betreiben zu können. Im Vergleich zu konventionellen Produkten können wir aufgrund der kompakten Bauweise so richtig punkten. AIR-SEP® Systeme sind oft nur 1/3 so groß und reduzieren den Platzbedarf in der Zentrale erheblich.
Sie suchen nach einer individuellen Sonderlösung? Wir finden genau das für Sie passende AIR-SEP® System! Egal ob für Kleinanlagen, Systeme mit mehreren Megawatt Leistung oder für Anlagen mit weit über einer Million Liter Inhalt. Wir können Ihnen mit einer Vielzahl an AIR-SEP® Produkten Realisierungsvorschläge liefern. Fragen Sie Ihr nächstes Projekt direkt bei uns an.

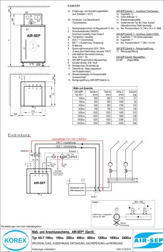
AIR-SEP Gen5 - Prinzipschema
(Typ AS-T 100/xx bis 2400/xx)

AIR-SEP Typ AS-T 150/30 (Gen5)

AIR-SEP Gen5 - Massschema
(Typ AS-T 100/xx bis 24007xx)
Was ist neu am AIR-SEP® der 5. Generation?
Die Systeme kleiden sich außen nun in anthrazitgrau. Ihre Beschriftungen in orange und weiß passen perfekt zur Verkleidung und zu dem neuen cyanblauen AIR-SEP® Markensymbol. Im Inneren befindet sich der aus Edelstahl gefertigte Ausdehnungsbehälter in dem das zirkulierende Kreislaufwasser gereinigt und zugleich entgast wird. AIR-SEP® ist somit das erste Ausdehnungsgefäß am Markt, welches aus Edelstahl gefertigt ist und eine Reinigungsöffnung besitzt! Separierte Verschmutzungen können somit dauerhaft aus dem Kreislauf entfernt werden. Als weiteres Alleinstellungsmerkmal besitzt das AIR-SEP® Gerät eine einzigartige Unterdruck-Membran. Sie verhindert sicher das Eindringen von Luftsauerstoff, kann die Entgasungsleistung verbessern und Volumenänderungen im Inneren perfekt ausgleichen. Am Boden des AIR-SEP® Gerätes kann, neben dem Anschluss zur Entleerung, ein optionaler Magnetitfilter angebracht und zum Abscheiden temporär demontiert werden. Ein Wasserstandsglas mit Niveauschalter zeigt den Füllstand des Ausdehnungsbehälters an und lässt eine eventuelle Verschmutzung gut sichtbar von außen erkennen. Der Niveausensor meldet einen Niedrigwasserstand. Da die Verkleidung auf Distanz montiert ist, verbessert diese Bauart gleichzeitig einen ungewollten Wärmetransport. Sie wirkt isolierend, ähnlich wie bei einer Thermosflasche. Oberhalb des Expansions- und Entgasungsbehälters befindet sich der Armaturen- und Steuerbereich, die Technikeinheit der neuen AIR-SEP® Generation. Hinter der aus Sendzimir verzinktem Stahlblech gearbeiteten Verkleidung befinden sich: eine Druckhaltepumpe, ein Drucksensor, ein Unterdrucksensor, eine Druckhalteleitung, die Ausdehnungs- und Entgasungsleitung, ein Entgasungsventil mit Rückbelüftungssperre, ein Anschluss als Sicherheitsüberlauf, ein Spülhahn, ein Nachspeise-Magnetventil mit einem Durchflusssensor, die AIR-SEP® SmartControl-Steuerung mit Touchscreen-Farbdisplay, ein Haupt- und ein Betriebsschalter sowie das Highlight der 5. Generation: ein neuer dynamischer Überströmer.
Er ersetzt das bisherige Überströmventil und ermöglicht jetzt einen vollautomatisierten Betrieb. Der Überströmer wird via Kennlinie regelgerecht gesteuert. Er öffnet sich während der Ausdehnung oder Entgasung und schließt sich vollautomatisch nach Erreichen des Sollsystemdruckes. Druckdifferenzen können nun auf ein Minimum reduziert werden. Er agiert dynamisch in Bereichen von +/-0,2bar und passt sich automatisch der geänderten Einstellung zur Druckhaltung an.
Die horizontale Kreiselpumpe übernimmt die Druckhaltung. Sie fördert entgastes Wasser druckabhängig zurück in den Kreislauf und sorgt während der Entgasung für eine optimale Anströmung des gasreichen Mediums.
Ein Druckmessumformer überwacht rund um die Uhr den Systemdruck und sendet die Information an die AIR-SEP® Steuerung.
An der Leitung für die Druckhaltung ist direkt die Druckhaltepumpe angeschlossen. Sie führt aus dem AIR-SEP® Gerät heraus, zurück an den durchströmten Anschluss am Rücklauf.
Die Ausdehnungs- und Entgasungsleitung mit dem Druckmessumformer führt in das AIR-SEP® Gerät hinein und ist anlagenseitig am dynamischen Nullpunkt des Systems anzuschließen. Am Ende der Ausdehnungsleitung befindet sich der neue, kennliniengesteuerte Überströmer mit Notstellfunktion.
Das Entgasungsventil mit Rückbelüftungssperre sitzt an oberster Stelle des Behälters und sorgt dafür, dass freie Gase sicher nach außen abgeführt werden. Zugleich verhindert eine Belüftungssperre das Eindringen von Luftsauerstoff. Es fungiert zudem als Sicherheitsüberlauf und ist daher bauseits an einem Ablauf mit Trichter anzuschließen.
Der Spülhahn erleichtert das kontrollierte Entleeren des Ausdehnungsbehälters z.B. während der Wartung und kann zum Durch- und Herausspülen verwendet werden.
Über das Magnetventil wird kontrolliert Frischwasser nachgespeist. Der Durchflusssensor überwacht dabei die Laufzeiten, Häufigkeiten und erfasst die Mengen litergenau.
Die AIR-SEP® SmartControl-Steuerung mit Touchscreen-Farbdisplay wurde den neuen Funktionen angepasst und neu programmiert. Sie ist jetzt in der Lage den Überströmer kennliniengenau zu steuern. Hinzukommen Verbesserungen in der Bedienung und im Informationsmanagement. Das AIR-SEP® Gerät ist rund um die Uhr mit dem System verbunden. Viele Parameter werden dabei erfasst und können als wichtige Informationen zur Verfügung gestellt werden. So kann der Betreiber rechtszeitig handeln und unsere AIR-SEP® Druckhaltestationen können aktiv zu einem störungsfreien Betrieb beitragen.
Wie bisher werden auch die AIR-SEP® Geräte der 5. Generation vor Auslieferung am Prüfstand getestet und komplett fertig parametriert. Ändert sich später die Anforderung zur Druckhaltung (z.B. Aufgrund von neuen Vorgaben), kann diese Einstellung nun völlig unkompliziert vor Ort angepasst werden. Über den passwortgeschützten Bereich gelangt der Betreiber zu Druckeinstellung. In Abhängigkeit von statischer Höhe, dem Sicherheitsventil, dem Standort des AIR-SEP® Gerätes und der Druckhaltepumpe kann die neue Druckvorgabe gewählt werden. Alle zugehörigen Parameter werden dynamisch und automatisch von der AIR-SEP® Steuerung angepasst. Es sind keine weiteren Justier- oder Kalibrierarbeiten notwendig! Zusätzlich ist am dynamischen Überströmer eine Sicherheitseinrichtung verbaut. Ist eine Ansteuerung nicht möglich (oder im Falle eines Stromausfalles) schließt der Überströmer automatisch mittels Federkraft (Notstellfunktion).
Mit dem AIR-SEP® Gerät der 5. Generation bekommen Sie eine Druckhaltestation für den vollautomatisierten Betrieb. Entwickelt für den Einsatz in allen geschlossenen und zirkulierenden Heiz-, Kühl-, Kälte- oder Tiefkältesystemen! Neben der neuen Bedienoberfläche, dem Informationsmanagement und dem neuen dynamischen Überströmer mit Notstellfunktion erhalten Sie ein Produkt, dass seit über 40 Jahren stehts weiterentwickelt wurde. Wir sind Experte auf den Gebieten der Druckhaltung, Ausdehnung, Entgasung, Nachspeisung und Reinigung. Unsere etablierten Produkte entsprechen dem aktuellen Stand der Technik und folgen Normen und Richtlinien.
Unsere Druckhaltestationen sind effizient, multifunktional, kompakt und platzsparend!
AIR-SEP® das Original.
AIR-SEP SmartControl-Steuerung im Überblick

AIR-SEP Steuerung: sieben Sprachen

Erstinbetriebnahme - Step by Step

Druckeinstellung bestätigen oder anpassen

Betriebszeit der Entgasung induviduell wählbar, um Geräusche (z.B. in der Nacht) zu minimieren

Überwachung der Nachspeisung
(auch Enthärtung (ION) oder Vollentsalzung (VE))

Automatische Berechnung von Kapazitäten

Überwachung der Nachspeisung pro Jahr

Startseite

Ihre AIR-SEP Druckhaltestation arbeitet optimal!

Wartungsintervall

Einstellungen: alle Parameter im Überblick

AIR-SEP kann frühzeitig Probleme an Ihrem Heizsystem erkennen und melden

Häufige Probleme: fehlerhafte Nachspeisung

Startseite bei Einsatz eines
AIR-SEP Heating/Cooling-KIT´s
AIR-SEP Generation 5 | Download
AIR-SEP® Betriebsanleitung (Gen5) DE | -> Download |
AIR-SEP® Betriebsanleitung (Gen5) GB | -> Download |
AIR-SEP® MAssschema (Gen5) zu Typ AS-T 100/xx bis 2400/xx | -> Download |
AIR-SEP® MAssschema Kälte (Gen5) zu Typ AS-T 100/xx bis 2400/xx | -> Download |
AIR-SEP® Ausschreigungstext (Gen5) zu Typ AS-T 100/xx bis 2400/xx | -> Download |



